



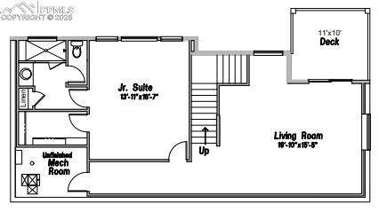
To Be Built- Welcome Home to this Ranch Plan in a Modern Elevation with a 3 car garage! Relax in the Great Room with engineered wood flooring, built-in shelving, and gas fireplace, with plenty of streaming natural light through the large windows! The gourmet kitchen with pantry, large island providing additional seating, and stainless steel gas cooktop, in wall combo oven and microwave, dishwasher, and pyramid hood. Gather Family and Friends in the Dining area for a delicious meal and great conversation, walk-out to the composite deck and take in the spectacular views! Primary suite is accompanied with a cozy sitting room, plush 5-piece bathroom with a linen closet, and large walk-in closet. A 2nd Bedroom or study that walks out to front covered porch, full bathroom, and laundry room with a sink complete the main level living! The lower level has a spacious Family room boasting a wet bar, 9' ceilings, and walks out to composite deck. Two bedrooms and a full bathroom with double vanities separated from the tub/shower/commode. A tech space with desk is a great open home office space. A huge storage room for all of your seasonal belongings, complete the lower-level. The finished basement boasts a spacious family room that walks out to composite deck. A Jr. Suite with a 3/4 bathroom with a linen closet, and walk-in closet. The utility room with a tankless water heater, 96% energy efficient furnace with a variable speed motor, sealed ducts, pex water piping, sprinkler stub, and active radon mitigation in this energy rated home. Main Level Living with finished double walk-outs in the Desirable Gold Hill Mesa Community!
| 4 months ago | Listing updated with changes from the MLS® | |
| 7 months ago | Listing first seen on site |